詳細情報
- おすすめ物件
- 新規物件
Z-30
事業用
安井金毘羅宮横ビル 1棟貸し テナント募集
-
- 賃料
- 100万円
-
- 所在地
- 京都市東山区広道通松原上る下弁天町51番地4
- 交通
- 京都市営バス「東山安井」停徒歩1分
-
- おすすめポイント
- ★二年坂より徒歩4分! ★八坂神社より徒歩8分! ★業種相談可! ★安井金毘羅宮前!
■建物について
- 専有面積
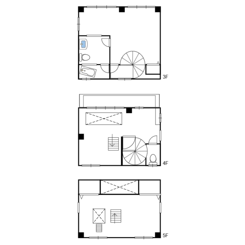
- 172.53㎡(約52.19坪)
- 構造
- 鉄構造陸屋根5階建
- 所在階
- 1棟
- 築年数(年)
- 平成3年6月10日築
- 総戸数
- 1戸
- 賃貸戸数
- 1戸
■引渡等
- 現況
- 居住中
- 時期
- 相談
■設備
- 水道
-
公営、
- 下水
-
公共、
- ガス
-
都市ガス、
- 駐車場
- 無
- 駐輪場
- 無
- バイク置き場
- 無
■賃貸条件
- 礼金(円)
- 2ヶ月
- 火災保険
- 加入要(指定有り)
- その他
- 家賃保証加入要(指定有り)
- 契約期間
- 10年
- 契約形態
-
定期賃貸借、
■備考
1階38.67㎡(約11.69坪)/2階40.63㎡(約12.29坪)/
3階40.63㎡(約12.29坪)/4階31.18㎡(約9.43坪)/
5階21.42㎡(約6.47坪) 計172.53(約52.17坪)
■取引態様
- 取引形態
-
専任、
- 担当
- 的場












