詳細情報
U-3
事業用
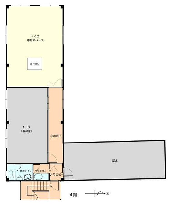
貸店舗・事務所 ユニティービル402号室
-
- 賃料
- 7.7万円
-
- 所在地
- 京都市右京区西院清水町141
- 交通
- 阪急電鉄京都線「西院」駅徒歩約14分
-
- おすすめポイント
- ・独立開業を目指す人 ・サロンにおすすめ ・バイク置場有(無料) ・駐輪場有(無料) ・主要採光面:西向き ・保証人不要 ・飲食店不可 ・最上階 ・24時間利用可 ・共用部分にトイレあり ・エアコン ・24時間セキュリティー
■建物について
- 専有面積
- 25.59㎡(約7.74坪)
- 構造
- 鉄骨造4階建
- 所在階
- 4階部分
- 間取り
- 1R
- 築年数(年)
- 1995年4月
- 建物種類
- 事務所・店舗ビル
- 総戸数
- 5戸
■引渡等
- 現況
- 空室
- 時期
- 即可
■設備
- 水道
-
公営、
- 下水
-
公共、
- ガス
-
都市ガス、
- 駐車場
- 無
- 駐輪場
- あり
- バイク置き場
- あり
■賃貸条件
- 敷金/保証金(円)
- -/3か月
- 礼金(円)
- 1か月
- 水道料
- 家賃込み
- 更新料
- 新賃料1か月
- 火災保険
- 任意
- その他
- 家賃保証:加入要(日本セーフティー)
- 契約期間
- 2年
- 契約形態
-
普通賃貸借、
■取引態様
- 取引形態
-
専属専任、
- 担当
- 田村








